




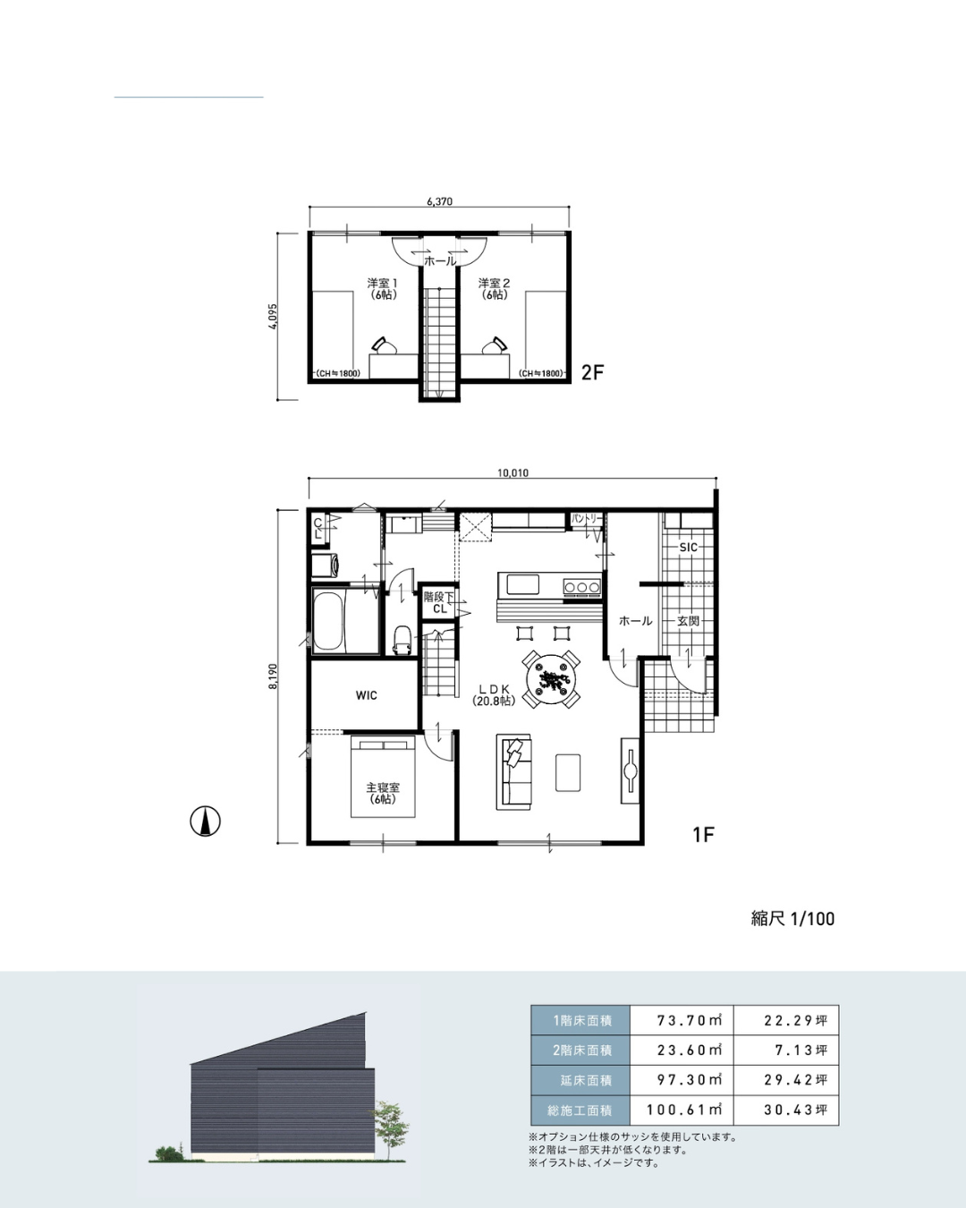
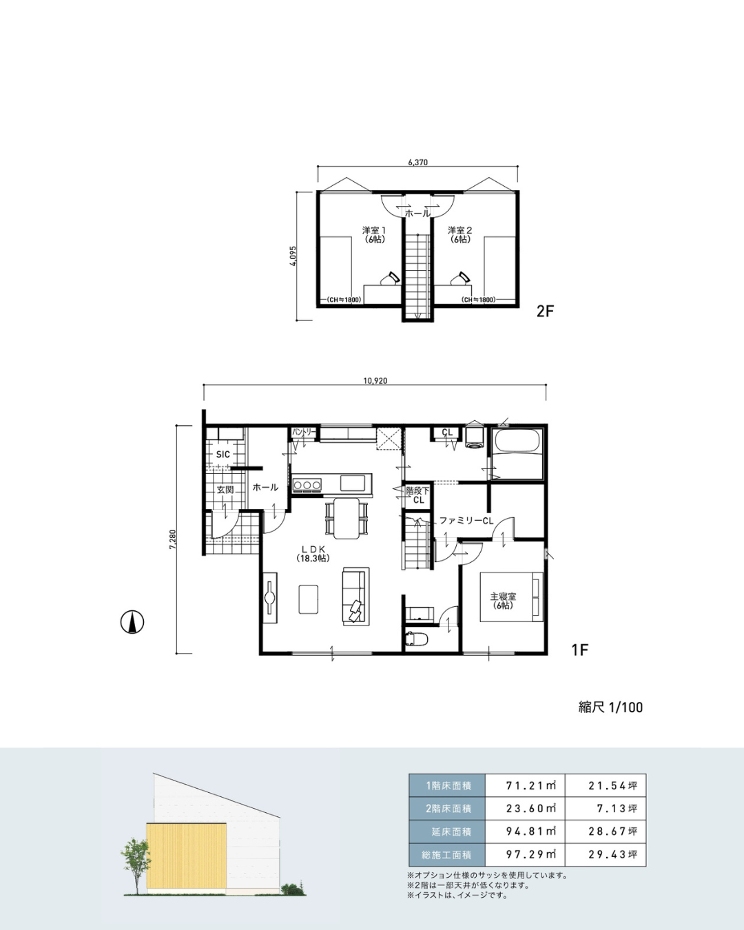
同じ外壁デザインでも、暮らしは人それぞれ。
この外観に、5つの異なる間取りをご用意しています。
家事動線を重視したプラン、
将来を見据えた1階主寝室のある暮らし、
LDKを広く楽しむプランも。
見た目はそのまま、
中身は“あなたの暮らしにフィット”させる。
広さより、心地よさを大切にした住まいです。🏠🌿





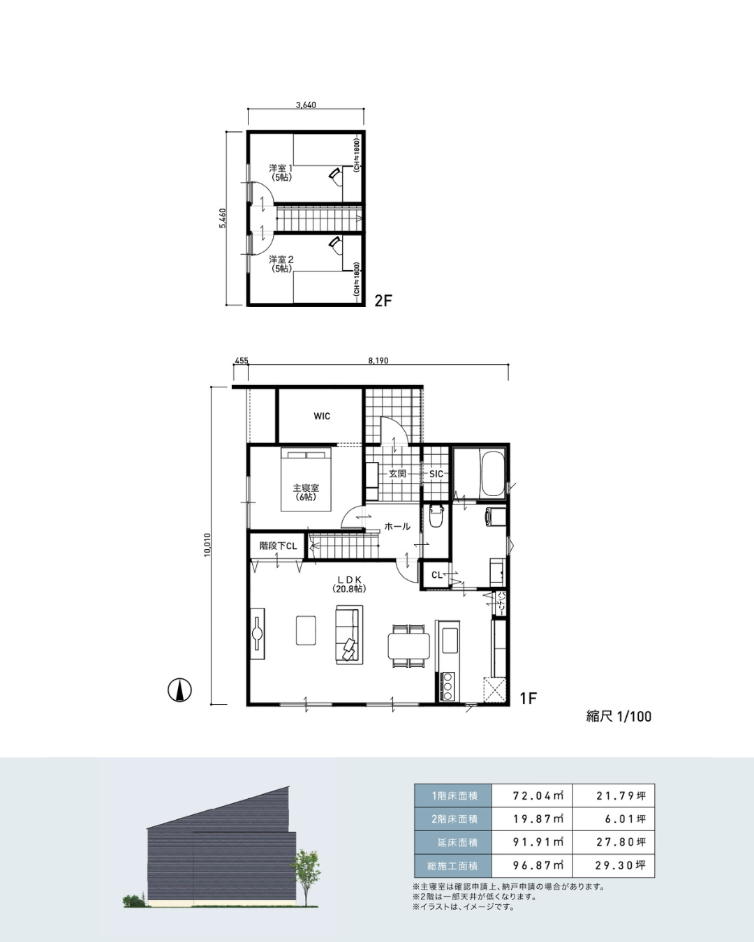
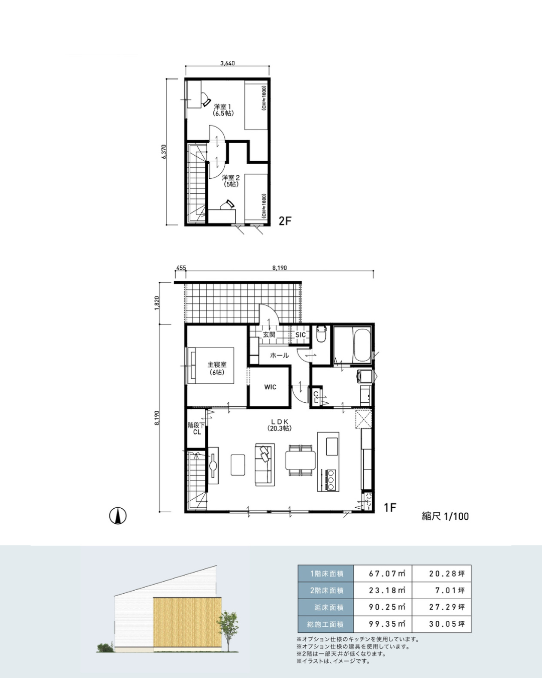
同じ外壁デザインでも、暮らしは人それぞれ。
この外観に、5つの異なる間取りをご用意しています。
家事動線を重視したプラン、
将来を見据えた1階主寝室のある暮らし、
LDKを広く楽しむプランも。
見た目はそのまま、
中身は“あなたの暮らしにフィット”させる。
広さより、心地よさを大切にした住まいです。🏠🌿